[图集] 重力式无阀滤池S775.pdf

26 0
2025-8-18 16:00 | 查看全部 阅读模式

一、基本信息

文档名称:重力式无阀滤池S775

文档格式:pdf格式

文档大小:1.35MB

总页数:16页


二、简介

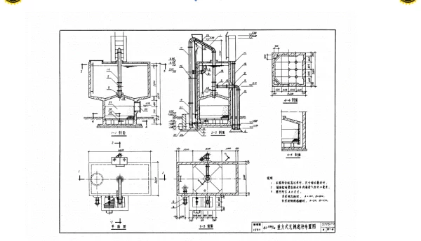
《重力式无阀滤池S775》是一种广泛应用于给水处理系统的过滤设备。该滤池利用重力作用进行水流分配和过滤,无需设置阀门,结构简单,运行稳定。S775型号具有较高的过滤效率和自动化程度,能够有效去除水中的悬浮物和杂质。其设计合理,维护方便,适用于中小型水厂及工业用水处理场所。该设备在实际应用中表现出良好的性能和可靠性,是现代水处理工程中的重要组成部分。


三、预览

重力式无阀滤池S775
2025-8-12 21:48 上传
文件大小:
1.35 MB
下载次数:
60
重力式无阀滤池S775.pdf
高速下载
【温馨提示】 您好!以下是下载说明,请您仔细阅读:
1、推荐使用360安全浏览器访问本站,选择您所需的PDF文档,点击页面下方“下载”按钮。
2、耐心等待两秒钟,系统将自动开始下载,本站文件均为高速下载。
3、下载完成后,请查看您浏览器的下载文件夹,找到对应的PDF文件。
4、使用PDF阅读器打开文档,开始阅读学习。
5、使用过程中遇到问题,请联系QQ客服。

本站提供的所有PDF文档、软件、资料等均为网友上传或网络收集,仅供学习和研究使用,不得用于任何商业用途。
本站尊重知识产权,若本站内容侵犯了您的权益,请及时通知我们,我们将尽快予以删除。
  • 手机访问
    微信扫一扫
  • 联系QQ客服
    QQ扫一扫
2022-2025 新资汇 - 参考资料免费下载网站 浙ICP备2024084428号-1
关灯 返回顶部
快速回复 返回顶部 返回列表