设为首页
收藏本站
首页
BBS
登录
注册
资料下载
›
新能源行业
›
BIPV系统节点图
[光伏发电]
BIPV系统节点图
240
0
2024-10-12 23:50
|
查看全部
阅读模式
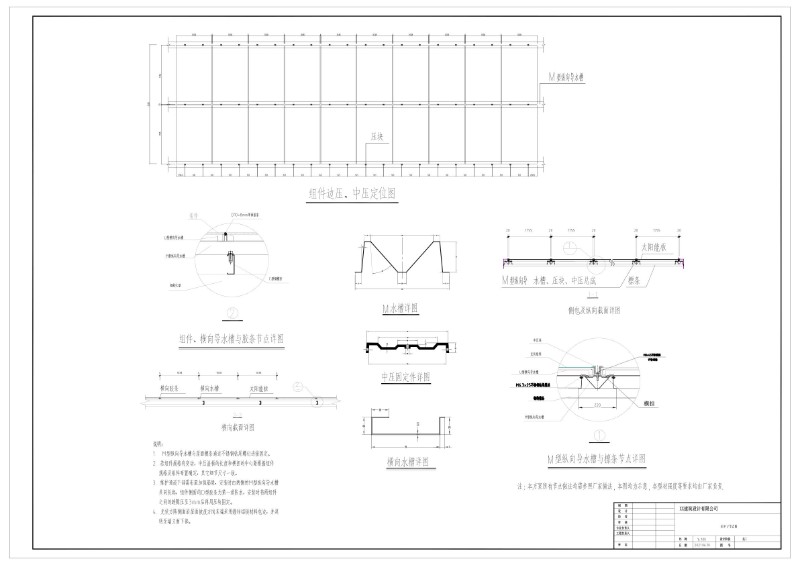
文档名称:BIPV系统节点图
BIPV系统节点图.pdf
文件大小:
148.56 KB
高速下载
节点
回复
举报
相关文档
•
蜂窝梁-焊接环式箍筋柱半刚性节点试验研究 - 全国第十届混凝土结构基本理论及工程应用学术会议.pdf
•
螺栓球节点网架局部焊接问题初探 - 庆祝刘锡良教授八十华诞暨第八届全国现代结构工程学术研讨会.pdf
•
螺栓球节点网架局部焊接问题初探 - 2008年全国建筑钢结构行业大会.pdf
•
螺栓球节点桁架的探索 - 中国钢协结构稳定与疲劳分会2008年学术交流会.pdf
•
角钢连接节点板受压性能的有限元分析 - 庆祝刘锡良教授八十华诞暨第八届全国现代结构工程学术研讨会.pdf
•
车载视频设备中LIN节点的实现 - 2008中国平板显示学术会议.pdf
•
轴力作用下多平面KK圆管节点焊接部位应力集中系数的计算方法 - 中国钢协结构稳定与疲劳分会2008年学术交流会.pdf
•
邻近节点小间距的网络可靠性的计算 - 第三届江苏计算机大会.pdf
•
钢筋混凝土框架角节点抗剪强度试验研究 - 全国第十届混凝土结构基本理论及工程应用学术会议.pdf
•
钢梁-钢筋混凝土柱组合结构节点初步研究 - 四川省土木建筑学会第33届学术年会.pdf
•
钢框架梁柱T型键、端板半刚性节点连接试验研究与对比分析 - 中国钢协结构稳定与疲劳分会2008年学术交流会.pdf
•
钢框架端板节点力学性能的数值模拟探讨 - 第八届全国结构计算理论与工程应用学术会议.pdf
•
钢管结构K型相贯节点的静动态极限承载力 - 第十二届空间结构学术会议.pdf
•
钢管混凝土环板节点设计的关键问题探讨 - 第八届全国结构计算理论与工程应用学术会议.pdf
•
钢管柱-钢梁节点的发展现状与研究方向 - 庆祝刘锡良教授八十华诞暨第八届全国现代结构工程学术研讨会.pdf
•
门式刚架控制截面尺寸和内力对节点设计影响 - 第八届全国结构计算理论与工程应用学术会议.pdf
•
隔离AdHoc恶意节点的一种信任模型 - 第19届全国计算机新科技与计算机教育学术大会.pdf
•
面向对象技术在钢结构节点设计中的应用 - 中国钢协结构稳定与疲劳分会2008年学术交流会.pdf
•
预应力钢结构节点制作工艺研究 - 第二届全国钢结构施工技术交流会.pdf
•
高性能计算节点智能平台管理模块的设计 - 第十四届全国核电子学与核探测技术学术年会.pdf
热门分类
法规
地方标准
团体标准
其他标准
工业技术
参考文献
新能源行业
电力行业
商务办公
建筑工程
打包下载
软件工具
2026
资料下载
联系邮件:1991591830#qq.com
浙ICP备2024084428号-1